
Cover image courtesy of Community Design Agency
What
co-creation
With
Community Design Agency
Format
art-led design intervention
Year
2021
Context
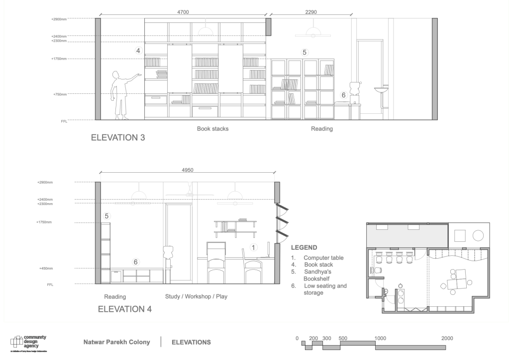
During the pandemic, the children of Natwar Parekh Colony felt a big lack of a dedicated space to study online. Their 220 sq.ft homes didn’t provide any room for online classes and there was inadequate infrastructure of internet and digital devices to attend them. The library initiative was a community owned and led process that helped to create a space just for the children of the colony.
Library trainers from Sahyog Trust and Bookworm (Goa) came to the neighbourhood to train a few members from the youth group through a library educator course.
I was involved throughout the design process and worked with the team to create the interior and exterior spaces. The library was opened in 2022.
Conceptual diagramming:



Design implementation


Image credit: Community Design Agency